skvělé bydlení u řeky Sázavy s výborným spojením do Prahy
Popis nemovitosti
Nabízíme k prodeji novostavbu řadového rodinného domu v obci Čerčany u Benešova. Dům je nyní před dokončením a kolaudace je plánovaná na prosinec 2025. Dům bude plně funkční a připraven k nastěhování: kompletně hotové koupelny (dlažby, obklady, zařizovací předměty včetně baterií), podlahové krytiny, interiérové dveře včetně kování, obložení vnitřního schodiště a vnitřní parapety.
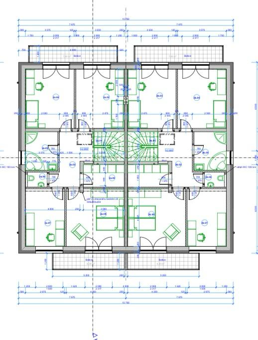
DISPOZICE
Po vstupu do zádveří můžete vstoupit do šatny, dále z chodby technické místnosti, koupelny se sprochovým koutem awc nebo do srdce domu v podobě prostorného obývacího pokoje s kuchyňským koutem. Pro vzdušnost a světlost prostoru navrhl architekt francouzské okno se vstupem do zahrady, které přírodním světlem osvětluje obývací pokoj. v 1. NP se gále nachází garáž s průchodem do domu. Ve 2. NP se nachází čtyří pokoje, šatna koupelna a samostatné wc.
RD Čerčany o dvou bytových jednotkách 5+kk s garáží, každá jednotka má podlahovou plochu 183 m², pozemek 450 m².
Použité materiály: zdivo Cihla Porotherm 30 cm plus 17 cm zateplení, střecha zateplená 50 cm polystyrenu, okna plastová - trojsklo, vytápění podlahové - zdroj tepelné čerpadlo Panasonic, krbová vložka 9 kw, obecní kanalizace a vodovod, energetická třída B, příprava na před okenní rolety, příprava pro fotovoltaiku, zpevněné plochy okolo domu betonová dlažba 10 cm.
LOKALITA
Pro rezidenční projekt byla vybrána obec Čerčany, která v současné době představuje velmi žádanou lokalitu s výbornou dostupností do Prahy. Město Čerčany a jeho okolí nabízí možnosti ke spoustě aktivit a mnoho dalšího - rybaření, houbaření, cykloturistika, fotbalové a volejbalové hřiště, tenisové kurty, půjčovna lodí a raftů, v okolí golfové areály - Pyšely, Štiřín, Konopiště, v zimních měsících možnost běžkaření atd. Ve městě se nachází veškerá občanská vybavenost: škola, školka, poliklinika, obchody, služby, vlakové a autobusové nádraží. Benešov 10 min., Nájezd na D1 - Mirošovice - 10 min. V případě zájmu Vám zdarma zprostředkujeme sjednání hypotéky. Více info v RK.
Udělujete tímto souhlas provozovateli tohoto webu: Zdeněk Šandera, IČO: , se sídlem , . (dále jen "Správce"), aby ve smyslu nařízení Evropského parlamentu a Rady (EU) 2016/679 o ochraně fyzických osob v souvislosti se zpracováním osobních údajů (dále jen GDPR) zpracovávala tyto osobní údaje:
jméno a příjmení
název společnosti
e-mail
telefonní číslo
Vaše osobní údaje budeme zpracovávat za účelem zasílání obchodních sdělení. Tyto údaje budou Správcem zpracovány po dobu trvání souhlasu.
S výše uvedeným zpracováním udělujete svůj výslovný souhlas. Souhlas lze vzít kdykoliv zpět, a to kliknutím na odhlašovací odkaz, který je součástí každé elektronické korespondence nebo zasláním emailu na adresu zdenek.sandera@seznam.cz nebo písemně na adresu Správce.
Zpracování osobních údajů je prováděno Správcem, osobní údaje však pro Správce mohou zpracovávat i tito zpracovatelé:
Tomawell s.r.o., IČO:06644210, se sídlem J. Š. Baara 1495, 277 11 Neratovice, která je poskytovatelem datových úložišť a softwarových aplikací.
Případně další poskytovatelé zpracovatelských softwarů, služeb a aplikací, které však v současné době společnost nevyužívá.
Vezměte, prosíme, na vědomí, že podle zákona o ochraně osobních údajů máte právo:
vzít souhlas kdykoliv zpět
požadovat po nás informaci, jaké vaše osobní údaje zpracováváme
požadovat po nás vysvětlení ohledně zpracování osobních údajů
vyžádat si u nás přístup k těmto údajům a tyto nechat aktualizovat nebo opravit
požadovat po nás výmaz těchto osobních údajů
v případě pochybností o dodržování povinností souvisejících se zpracováním osobních údajů obrátit se na nás nebo na Úřad pro ochranu osobních údajů