Používáme cookies k optimalizaci našich webových stránek a našich služeb. Další informace o cookies najdete zde.

Nastavení


RD Hloubetin Poricanska

PRODEJ RODINNÉHO DOMU VE VILOVÉ ČTVRTI V HLOUBĚTÍNĚ

Popis nemovitosti

Nabízíme k prodeji rodinný dům 6+2 s celkovou podlahovou plochou 267 m2 a garáží v klidné části Hloubětína, ulice Poříčanská. Dům z roku 1970 je postaven v původní vilové zástavbě a v roce 2000 prošel rekonstrukcí (změna na vícegenerační bydlení včetně podkroví), další rekonstrukce proběhla v roce 2015 v 1.NP domu (úprava dispozice pokojů, výměna topných těles, rekonstrukce koupelny + WC, kuchyně) a v roce 2023 rekonstrukce 2.NP (chodba, koupelna s WC a kuchyně). Dům svou velikostí nabízí ideální zázemí pro rodinné bydlení. Dispozice jednotlivých podlaží a umístění schodiště zároveň umožňují, po menších úpravách, rozdělení na až tři samostatné bytové jednotky – vhodné jak pro vícegenerační bydlení, tak i k pronájmu. Prostorná zahrada poskytuje dostatek místa pro výstavbu menšího objektu k podnikání (např. kadeřnictví, ordinace či kancelář) nebo vedlejšího bydlení (vejminek).

Dispozice 1.NP: obývací pokoj, kuchyň, ložnice, koupelna s wc, ze zádveří schodiště do prvního patra. 

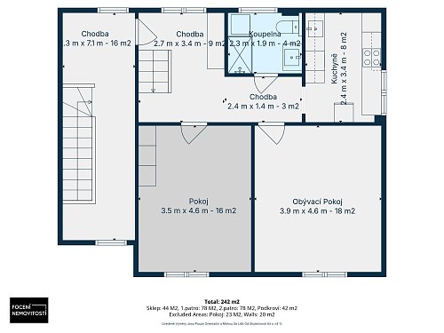
Dispozice 2.NP: obývací pokoj, ložnice, kuchyň, koupelna s wc a vstup do podkroví. 

Dispozice podkroví:2x pokoj, šatna. 

Dispozice suterén: 3x sklad, prádelna, kotelna a chodba. 

Parametry: parcela 1.084 m2, zastavěná plocha 97 m2 dům + 28 m2 garáž, vytápění plynovým kotlem, ohřev vody elektrickým boilerem (1xbojler pro suterén a 1.NP, 1x bojler pro 2.NP a podkroví), el. 230V/400V (1x elektroměr pro suterén a 1.NP, 1x elektroměr pro 2.NP a podkroví), obecní vodovod, kanalizace, plyn, pozemek komplet oplocen.

LOKALITA

Rodinný dům se nachází v klidné části Hloubětína disponující veškerou občanskou vybaveností a dobrou dopravní infrastrukturou. Oblast tvoří rodinné domy - původní zástavba. Stanice autobusu a tramvaje jsou 4 minuty chůze od domu a stanice metra „Hloubětín“ do 8 minut chůze od domu, obchodní centrum Černý Most 4 km. Nájezd na Pražský okruh 4,7 km. V okolí najdete veškerou občanskou vybavenost – mateřské a základní školy, poštu, polikliniky, lékárnu, obchody, potraviny, dětská hřiště, kulturní vyžití atd. Pro volnočasové aktivity můžete využít okolní cyklostezky, tenisové kurty, sportovní centrum, fotbalové hřiště, sokolovnu nebo venkovní posilovny. Do přírody do parku Lehovec nebo parku U Čeňku. nedaleko je Kyjský rybník, který nabízí možnost rybaření, v zimních měsících bruslení; celoročně otevřený krytý plavecký bazén (čerstvě po rekonstrukci) je ve vzdálenosti cca. 850 metrů.

 

 

3D scan

Cena nemovitosti

33.900.000,- Kč

Kontaktní formulář

Stáhnout PDF